Overview
Description
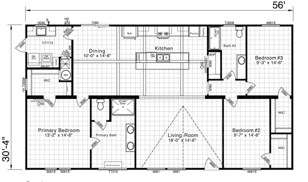
๐ก The Rockwall
The Rockwall is a spacious 1,699 sq. ft. home with 3 bedrooms and 2 full baths, designed with an open-concept layout that blends comfort and style. A large living area flows seamlessly into the dining and kitchen spaces, creating the perfect setting for family gatherings or entertaining guests. The master suite includes a generous walk-in closet and private bath, giving you a true retreat within your home.
๐จ Built to Last
Crafted with quality construction, the Rockwall features 2ร4 exterior walls, 2ร8 floor joists with OSB decking, and a rugged metal roof for long-lasting strength. With R-11 wall & floor insulation and R-22 roof insulation, itโs designed for energy efficiency and year-round comfort. An 8-ft sidewall height with vaulted ceilings (model specific) adds openness and light throughout the home.
๐ณ Kitchen & Living Features
The kitchen is a true highlight, with shaker-style cabinetry, rolled-edge countertops, a sleek gooseneck faucet, and modern lighting. A walk-in pantry and optional island provide extra function and storage, while USB outlets and durable flooring keep up with everyday living. With thoughtful details like an entertainment center in the living room and smart built-ins throughout, the Rockwall combines quality construction with everyday convenience.
Features
- Air Conditioning
- Heat
- Appliance Package
- Water Heater
- Mini-blinds
- Energy Efficient Windows
- Flooring (either carpet or vinyl flooring)
- Plumbed for washer/dryer
- Optional Add-on - Upgrade Bath
- Optional Add-on - Upgrade Extra Bedroom
360ยฐ Virtual Tour
Mortgage Calculator
- Principal & Interest $3,510.00
- Property Tax $250.00
- Home Insurance $83.33
- PMI $1,000.00










































































































































