Overview
Description
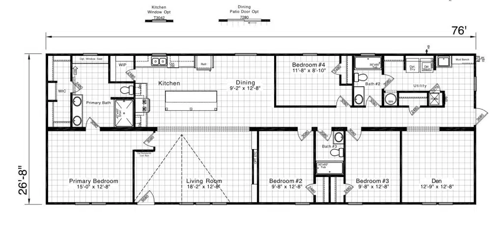
Welcome to The Kaufmanโa spacious 2,027 sq ft haven designed for comfort, style, and durability ๐กโจ. With 4 bedrooms and 3 full baths, this home offers room for everyone to spread out and enjoy modern living.
Spa-Inspired Bathrooms ๐
Your primary suite pampers you with a generous 42" ร 60" Monarch shower, a sleek 24" ร 36" framed mirror, chic black faucets, and a timeless china sink. The secondary bath features a 60" fiberglass tub/shower combo and its own transom window for natural light. All baths are finished with rolled-edge countertops, AF Lino flooring, and energy-saving LED can lights.
Chef-Ready Kitchen & Dining ๐ณ
Cook like a pro with an electric range, barn-door range hood, deep 8" stainless-steel sink, and graceful gooseneck faucet. Tall 42" shaker cabinetsโtopped with rolled-edge countersโ pair with hidden hinges and black pulls for a clean, modern look. A roomy island (model-specific) and pantry with three-row wire shelving keep everything organized, while USB charging outlets keep devices powered ๐.
Comfortable Living Spaces ๐ฌ
Gather around the built-in entertainment center for movie night, beneath an 8' vaulted knock-down ceiling crowned with elegant 2 ยพ" molding. Grid-free vinyl windows and cordless blinds invite natural light while preserving your view.
Built StrongโInside and Out ๐ ๏ธ
-
Rugged metal roof over an efficient 3/12 pitch and dormer accents
-
2 ร 4 exterior walls, 2 ร 8 floor joists, and OSB floor decking for rock-solid stability
-
Wind Zone 1 engineering plus R-11 wall/floor and R-22 roof insulation for year-round comfort ๐ก๏ธ
-
Vinyl siding over OSB, paired with residential-steel front and cottage rear doors for security ๐ช
Modern Utilities & Conveniences โก
A 200-amp electrical service, up-flow electric furnace, 30-gallon electric water heater, and washer-dryer hookups mean youโre move-in ready from day one. LED can lights throughout keep energy bills low while keeping every room bright ๐ก.
Curb Appeal & Details ๐ณ
Shutters at the front and hitch sides, exterior lights at each door, and a graceful roof dormer deliver a polished faรงade youโll be proud to come home to.
From the vaulted ceilings to the craftsman trim, The Kaufmanย blends thoughtful design with uncompromising constructionโgiving you the luxury lifestyle you deserve, wrapped in the strength you need. Come experience unparalleled comfort and make this stunning manufactured home yours today! ๐ โค๏ธ
Features
- Air Conditioning
- Heat
- Appliance Package
- Water Heater
- Mini-blinds
- Energy Efficient Windows
- Flooring (either carpet or vinyl flooring)
- Plumbed for washer/dryer
- Optional Add-on - Upgrade Bath
- Optional Add-on - Upgrade Extra Bedroom
Mortgage Calculator
- Principal & Interest $3,510.00
- Property Tax $250.00
- Home Insurance $83.33
- PMI $1,000.00









































































































