Overview
1
1
620
Description
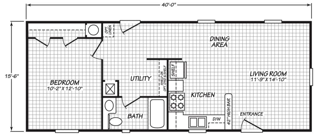
Welcome Home to the Landmark
The Landmark is a thoughtfully designed 1-bedroom, 1-bath manufactured home that delivers comfort, efficiency, and everyday livability. Offering 620 square feet of well-planned space, this Fleetwood Homes model maximizes functionality without sacrificing style. Its open layout creates a welcoming atmosphere that feels both practical and inviting—perfect for unwinding at the end of the day or enjoying quiet time with guests.
Well suited for individuals or couples, the Landmark offers a smart balance of design and ease. Every detail is intentional, creating a home that feels comfortable, manageable, and truly livable. Schedule a tour of the Landmark and see how simple living can still feel exceptional.
Features
- Air Conditioning
- Heat
- Appliance Package
- Water Heater
- Mini-blinds
- Energy Efficient Windows
- Plumbed for washer/dryer
- Kitchen Island
- Walk-in Pantry
- Optional Add-on - Upgrade Bath
- Optional Add-on - Upgrade Extra Bedroom
Mortgage Calculator
Monthly
- Principal & Interest $3,510.00
- Property Tax $250.00
- Home Insurance $83.33
- PMI $1,000.00







































