Overview
Description
The Mustang Home: Where Smart Design and Comfortable Living Come Together
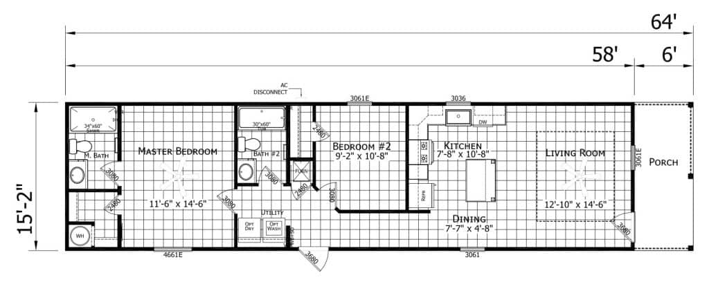
Discover the Mustang, a well-appointed manufactured home offering two bedrooms, two full bathrooms, and approximately 880 square feet of efficient, inviting living space. Constructed in compliance with the federal HUD code for manufactured housing, this home delivers dependable quality and peace of mind.
Inside, the layout balances modern aesthetics with everyday practicality. A bright flat white ceiling with a prominent exposed beam creates an open feel, while craftsman-style interior doors and energy-saving LED lighting add warmth and refinement throughout the home.
The kitchen is designed for both function and style, featuring sleek black Whirlpool appliances, including a side-by-side refrigerator and electric coil range. Finishing touches such as ceramic tile backsplash and open black pipe shelving provide a contemporary, custom look.
Each bathroom is outfitted with porcelain sinks, brushed nickel fixtures, and ceramic backsplash details that enhance durability and visual appeal. The primary bedroom offers a private retreat with a walk-in closet complete with wood shelving and distinctive white barn-style doors.
On the exterior, the Mustang stands out with Smart panel siding, energy-efficient thermopane windows, and a long-lasting Galvalumeยฎ metal roofโdesigned to perform as well as it looks.
Located in Mustang Ridge, Texas, the Mustang is an ideal choice for buyers seeking modern design, efficient living, and lasting value. Schedule a tour and see firsthand how this home blends comfort, style, and functionality into one exceptional package.
Features
- Air Conditioning
- Heat
- Appliance Package
- Water Heater
- Mini-blinds
- Energy Efficient Windows
- Plumbed for washer/dryer
- Kitchen Island
- Walk-in Pantry
- Optional Add-on - Upgrade Bath
- Optional Add-on - Upgrade Extra Bedroom
Video
Mortgage Calculator
- Principal & Interest $3,510.00
- Property Tax $250.00
- Home Insurance $83.33
- PMI $1,000.00

















































































